
Source: PinterestMerencanakan hunian impian membutuhkan fondasi yang kuat. Fondasi tersebut dimulai dari perencanaan yang matang. Salah satu tahap paling krusial adalah penyusunan denah. Denah merupakan peta jalan visual yang akan memandu seluruh proses pembangunan. Artikel ini akan menyajikan berbagai contoh denah rumah minimalis modern yang ideal. Kami akan membahas mulai dari tahapan awal perencanaan hingga tips optimalisasi tata letak untuk hunian 1 dan 2 lantai.
Langkah Awal Membuat Denah Rumah Minimalis Modern yang Efisien
Membuat denah tidak sekadar menggambar kotak di atas kertas. Proses ini memerlukan analisis mendalam tentang kebutuhan, fungsi, dan batasan lahan. Denah yang efisien memastikan setiap meter persegi dimanfaatkan secara maksimal. Ini adalah ciri khas utama dari gaya minimalis modern.
1. Menentukan Batasan Proyek dan Luas Bangunan
Langkah pertama adalah menentukan batasan proyek Anda. Analisis kebutuhan ruang harus disesuaikan dengan jumlah penghuni. Apakah Anda memerlukan 2 kamar tidur, 3, atau bahkan ruang kerja khusus? Setelah itu, pahami regulasi tata ruang setempat. Perhitungan Koefisien Dasar Bangunan (KDB) sangat penting. KDB akan membatasi berapa persen dari lahan Anda yang boleh dibangun. Jangan sampai perencanaan Anda melanggar aturan setempat.
2. Pentingnya Site Plan dan Orientasi
Site plan adalah peta skala besar yang menunjukkan posisi bangunan di atas lahan. Pertimbangkan orientasi rumah Anda terhadap lingkungan sekitar. Pikirkan arah matahari, arah angin, dan sistem drainase. Orientasi yang tepat dapat mengurangi biaya energi. Misalnya, menempatkan jendela besar di sisi Timur untuk memaksimalkan cahaya pagi. Penempatan carport dan area hijau juga harus masuk dalam perhitungan site plan awal.
3. Konsultasi dengan Arsitek Rumah Profesional
Meskipun Anda bisa membuat sketsa awal sendiri, konsultasi dengan arsitek rumah profesional sangat dianjurkan. Arsitek akan membantu menerjemahkan visi Anda ke dalam bahasa teknis. Mereka memastikan desain Anda sesuai dengan standar teknis keamanan dan kenyamanan. Mereka juga dapat membantu menghindari kesalahan fatal dalam perencanaan struktural. Mengapa Memilih Jasa Arsitek Terbaik?
4. Mengenali Detail Struktur Pondasi yang Kuat
Struktur pondasi adalah elemen yang sering terlupakan dalam denah awal. Namun, ini sangat vital untuk rumah minimalis modern. Rumah minimalis modern seringkali menggunakan desain yang bersih dan kotak. Ini menuntut pondasi yang stabil. Jenis pondasi yang cocok bervariasi. Misalnya, pondasi cakar ayam atau batu kali, tergantung kondisi tanah. Pastikan denah mencakup lokasi dan jenis pondasi yang direkomendasikan.

Source: PinterestInspirasi Skema Tata Letak Ruangan untuk Tipe 1 Lantai
Rumah satu lantai menawarkan kemudahan akses dan minimnya biaya struktural yang kompleks. Fokus utama dalam denah tipe ini adalah optimalisasi aliran ruang. Hal ini perlu integrasi sempurna dengan konsep desain interior.
1. Denah Tipe Rumah Minimalis 36, 45, dan 70
Untuk rumah minimalis satu lantai, tipe 45 adalah salah satu yang paling populer. Denah tipe 45 biasanya mengakomodasi dua kamar tidur. Selain itu, ada satu kamar mandi, dapur, dan ruang tamu. Strategi kunci adalah penggabungan area komunal. Misalnya, menggabungkan ruang tamu (Living Room) dengan ruang makan (Dining Room) dalam satu area terbuka. Ini menciptakan kesan lapang.
Pada tipe yang lebih besar, seperti tipe 70, Anda bisa menambahkan kamar tidur ketiga. Anda juga dapat menyertakan ruang kerja kecil. Pastikan alur pergerakan dari pintu masuk ke area privat (kamar tidur) tidak memotong area komunal.
2. Optimalisasi Tata Letak Ruangan Multifungsi
Konsep minimalis modern sangat mengedepankan fungsionalitas. Pertimbangkan ide ruang tamu terbuka. Ruang tamu terbuka ini terhubung langsung dengan teras atau taman belakang. Ini tidak hanya memperluas pandangan mata. Ini juga memaksimalkan sirkulasi udara. Pemanfaatan void atau lubang terbuka di plafon juga penting. Void memaksimalkan pencahayaan alami di area tengah rumah yang mungkin gelap. Tata letak ruangan harus fleksibel. Furnitur harus dapat digeser atau dilipat.
3. Peran Pintu dan Jendela dalam Sirkulasi Udara
Sirkulasi udara dan cahaya alami adalah kunci kesehatan hunian. Penentuan bukaan yang lebar sangat penting. Ini memberikan kesan minimalis dan modern yang sangat kuat. Penggunaan material kaca yang dominan pada fasad depan atau belakang memberikan visual yang elegan. Selain itu, ini menghubungkan interior dengan eksterior. Pastikan penempatan jendela seimbang. Jendela harus memfasilitasi aliran udara silang (cross ventilation) yang baik.
4. Membuat Sketsa Rumah Awal
Sebelum beralih ke perangkat lunak desain, membuat sketsa rumah awal sangat membantu. Anda bisa menggunakan kertas milimeter atau bahkan aplikasi sederhana. Sketsa ini berfungsi sebagai draft kasar. Ini membantu Anda memvisualisasikan proporsi ruang. Pastikan alur pergerakan sudah benar. Alur pergerakan yang baik mengalir dari area publik (teras, ruang tamu) ke area privat (kamar tidur, kamar mandi) dengan jelas. Meminta saran dari pihak ketiga mengenai sketsa awal dapat memberikan perspektif baru.
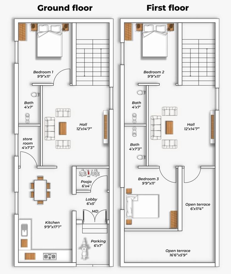
Contoh Denah Rumah Minimalis Modern: Fokus Bangunan 2 Lantai
Rumah minimalis modern dua lantai adalah solusi ideal untuk lahan terbatas. Denah ini memaksimalkan ruang vertikal. Namun, perencanaan denah 2 lantai membutuhkan detail yang lebih kompleks. Hal ini terutama terkait dengan struktur dan penempatan tangga.
1. Penerapan Denah 3 Dimensi (3D)
Untuk rumah dua lantai, beralih ke denah 3 dimensi (3D) sangat menguntungkan. Model 3D memungkinkan Anda memvisualisasikan proporsi ruang secara realistis. Anda dapat melihat bagaimana cahaya masuk. Anda juga bisa mengevaluasi penataan tangga yang hemat ruang dan estetis. Tangga harus ditempatkan sedekat mungkin dengan pintu masuk atau di sudut yang tidak mengganggu tata letak ruangan utama. Hindari menempatkan tangga di tengah rumah. Hal itu dapat memecah area komunal menjadi tidak efektif.
2. Desain Fasad Rumah Modern yang Simpel
Fasad rumah minimalis modern seringkali ditandai oleh kesederhanaan. Fasad menggunakan garis lurus yang tegas. Fasad biasanya menggunakan material kontemporer. Contohnya beton ekspos, baja, atau aksen kayu alami. Denah harus mempertimbangkan penempatan balkon atau rooftop yang terintegrasi. Pastikan balkon memiliki fungsi. Balkon bisa menjadi area bersantai yang langsung terhubung ke kamar tidur utama di lantai atas. Keselarasan fasad dengan denah sangat penting.
3. Detail Gambar Teknik untuk Lantai Atas
Lantai atas biasanya didedikasikan untuk area privat. Ini mencakup kamar tidur utama, ruang kerja, atau ruang keluarga sekunder. Penyusunan ini membutuhkan detail gambar teknik yang akurat. Detail ini tidak hanya mencakup dimensi dinding. Gambar teknik juga harus menunjukkan penempatan instalasi. Contohnya instalasi listrik dan air vertikal dari lantai satu ke lantai dua. Pastikan kamar mandi di lantai dua ditempatkan di atas kamar mandi lantai satu jika memungkinkan. Ini akan menyederhanakan sistem perpipaan dan menghemat biaya.

Persiapan dan Rencana Anggaran Biaya Pembangunan
Denah yang sempurna tidak ada artinya tanpa rencana finansial yang solid. Tahap terakhir dalam perencanaan denah rumah minimalis modern adalah memastikan kelayakan proyek secara finansial dan logistik.
1. Menyusun Rencana Anggaran Biaya (RAB) Secara Detail
Rencana Anggaran Biaya (RAB) adalah alat keuangan yang krusial. Susun RAB secara rinci berdasarkan gambar teknik yang sudah final. Pisahkan biaya upah kerja, biaya material, dan biaya tak terduga. Biaya material mencakup segala hal, mulai dari pondasi hingga finishing lantai. Penting untuk menyediakan dana cadangan. Dana cadangan sebaiknya sekitar 10-15% dari total biaya. Ini mengantisipasi kenaikan harga atau perubahan desain mendadak. Anda bisa mendapatkan estimasi biaya material terbaru melalui Pusat Informasi Material Bangunan.
2. Melakukan Perhitungan Material Bangunan
Setelah denah dan RAB disetujui, lakukan perhitungan material bangunan secara cermat. Estimasi kebutuhan semen, pasir, besi, dan keramik harus mendekati angka yang sebenarnya. Membeli material dalam jumlah besar terkadang memberikan diskon. Namun, pastikan Anda memiliki tempat penyimpanan yang aman. Strategi memilih material berkualitas namun efisien sangat penting dalam gaya minimalis. Pilih material yang tahan lama. Material yang tahan lama akan mengurangi biaya pemeliharaan di masa depan.
3. Jadwal Waktu Pelaksanaan Konstruksi
Denah juga harus dilengkapi dengan jadwal waktu pelaksanaan. Ini adalah tahapan proyek. Mulai dari pembangunan struktur pondasi, pemasangan dinding, hingga tahap finishing dan desain interior. Jadwal yang jelas membantu Anda mengawasi proses konstruksi. Ini juga memastikan proyek selesai tepat waktu. Pengawasan kualitas harus dilakukan di setiap tahapan. Pengawasan yang ketat mencegah pembangunan ulang atau perbaikan mahal di kemudian hari.
Denah adalah jantung dari rumah minimalis modern Anda. Dengan mengikuti langkah-langkah perencanaan yang sistematis, Anda dapat menciptakan hunian yang tidak hanya indah secara visual. Denah yang baik juga memastikan rumah Anda berfungsi secara efisien. Ingatlah pentingnya konsultasi dengan arsitek rumah profesional. Gunakan sketsa rumah awal untuk visualisasi. Selanjutnya, gunakan gambar teknik detail untuk eksekusi. Perencanaan tata letak ruangan yang matang adalah investasi terbaik Anda dalam membangun rumah impian.
Author Profile
- Deva Kerneels
Latest entries
ArticleApril 20, 2026Ini 5 Tanaman yang Bikin Rumah Kamu Jadi Makin Keliatan Bagus!
ArticleApril 20, 2026Bagaimana Prospek Investasi Properti di Depok 2026-2030?
UncategorizedApril 17, 2026Cara Membedakan Developer Rumah yang Bagus dan Abal-Abal!
ArticleApril 16, 2026Dokumen Penting yang Harus Disiapkan Saat Membeli Rumah!



